Mareste imaginea
Rasina pentru electroeroziune cu fir - sac 25l
Rasina pentru electroeroziune cu fir - sac 25l
Mareste imaginea
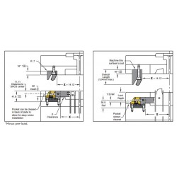
Bac-urile Cam Action Progressive asigura o montare usoara pe matrita.
Sunt valabile mai multe marimi si dimensiuni.
Realizate din materiale de ultima generatie tratate pentru fiabilitate superioara.
Temperatura maxima de operare 150°C.
| Cod produs | Dimensiuni (mm) | Cursa (mm) | Stoc | Mod ambalare | Cantitate | |
|---|---|---|---|---|---|---|
| CAMM-300L | 40 x 60 x 147.4 | 6.35 | La comanda | 1 | ||
| CAMM-300 | 40 x 60 x 57.7 | 6.35 | La comanda | 1 |
Rasina pentru electroeroziune cu fir - sac 25l
Brida cu cioc complet echipata. Setul include brida, surub reglare, saiba groasa si piulita, surub cu cap imbus gr12.9
Rezistente pentru duze injectie - Varianta compacta.
Bac CamAction, seria 300